- 质量稳定:实行全过程质量监控,细致入微,全方位检测!
- 价格合理:高效内部成本控制,减少了开支,让利于客户!
- 交货快捷:先进生产流水线,充足的备货,缩短了交货期!
- 销售:021-66059666
- 传真:021-39901228
- 技术:021-39900466
产品说明
CS49H-16、S49H-16、CS49-16C、CS49H-25、CS49H-40 圆盘式蒸汽疏水阀:法兰连接、圆盘热动力结构形式,阀座密封面材料为 Cr13 系不锈钢,公称压力 PN16~PN40,阀体材料为灰铸铁(CS49H-16、S49H-16)、碳钢(CS49H-16C、CS49H-25、CS49H-40)的蒸汽疏水阀。圆盘式疏水阀用来自动排除蒸汽管道,用热设备中的凝结水,以保证管道畅通,提高热效率。用于石油、化工、食品、印染、纺织、医药等行业的蒸汽管网中的蒸汽总管、支管、汽水分离器等场合,还可用于烘房、烘箱、热压机等用汽设备中。
工作原理:圆盘式蒸汽疏水阀是根据伯努力热动力原理,利用蒸汽和凝结水的热动力学不同的特性,引起动能和势能动静压变化.使动作件阀片上下压差变化,启动阀片开启和关闭,从而达到阻汽排水目的。
产品性能参数
| 型号 | PN | 工作压力/MPa | 适用温度/℃ | 适用介质 |
|---|---|---|---|---|
| CS49H-16、 S49H-16 | 16 | 1.6 | ≤203 | 蒸汽、凝结水 |
| CS49H-16C | 16 | 1.6 | ≤203 | |
| CS49H-25 | 25 | 2.5 | ≤210 | |
| CS49H-40 | 40 | 4.0 | ≤247 |
返回页首 ⇑
产品零部件材料
| 型号 | 材料 | |
|---|---|---|
| 阀体、阀盖 | 阀座、阀杆、过滤网 | |
| CS49H-16、 S49H-16 | 灰铸铁 | 不锈钢 |
| CS49H-16C | 碳素铸钢 | 不锈钢 |
| CS49H-25 | 碳素铸钢 | 不锈钢 |
| CS49H-40 | 碳素铸钢 | 不锈钢 |
返回页首 ⇑
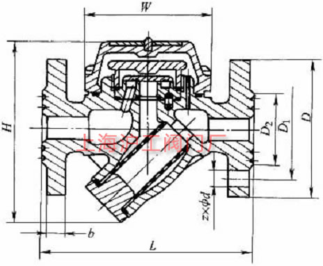
产品外形及结构尺寸
| DN | L | H | D | D1 | D2 | b | z×Φd | 重量/kg |
|---|---|---|---|---|---|---|---|---|
| 15 | 150 | 70 | 95 | 56 | 54 | 16 | 4×Φ13.5 | 4 |
| 20 | 190 | 70 | 105 | 75 | 58 | 16 | 4×Φ13.5 | 4.2 |
| 25 | 200 | 70 | 115 | 85 | 68 | 16 | 4×Φ13.5 | 4.5 |
| 32 | 230 | — | 135 | 100 | 78 | 18 | 4×Φ17.5 | 6 |
| 40 | 230 | — | 145 | 110 | 85 | 18 | 4×Φ17.5 | 8 |
| 50 | 230 | — | 160 | 125 | 100 | 20 | 4×Φ17.5 | 9 |
| 65 | 270 | — | 185 | 145 | 122 | 20 | 4×Φ17.5 | 13.5 |
| 80 | 280 | — | 200 | 160 | 133 | 22 | 4×Φ17.5 | 17.5 |
| 100 | 300 | — | 215 | 180 | 155 | 24 | 4×Φ17.5 | 20 |
返回页首 ⇑
产品外形及结构尺寸
| DN | L | D | D1 | H | z×Φd |
|---|---|---|---|---|---|
| 15 | 150 | 95 | 65 | 105 | 4×Φ14 |
| 20 | 150 | 105 | 75 | 105 | 4×Φ14 |
| 25 | 160 | 115 | 85 | 110 | 4×Φ14 |
| 32 | 230 | 135 | 100 | 115 | 4×Φ18 |
| 40 | 230 | 150 | 110 | 125 | 4×Φ18 |
| 50 | 230 | 165 | 125 | 135 | 4×Φ18 |
返回页首 ⇑
产品外形及结构尺寸
| DN | L | D | D1 | D2 | D6 | z×Φd | 重量/kg |
|---|---|---|---|---|---|---|---|
| 15 | 150 | 95 | 65 | 46 | 40 | 4×Φ14 | 2.7 |
| 20 | 150 | 105 | 75 | 56 | 51 | 4×Φ14 | 3.2 |
| 25 | 160 | 115 | 85 | 65 | 58 | 4×Φ14 | 3.7 |
| 40 | 230 | 150 | 110 | 84 | 76 | 4×Φ18 | 8.5 |
| 50 | 230 | 165 | 125 | 99 | 88 | 4×Φ18 | 10.5 |
返回页首 ⇑
产品外形及结构尺寸示意图

返回页首 ⇑
声明:本文中所有文字、数据、图片均只适用于参考,CS49H-16、S49H-16、CS49-16C、CS49H-25、CS49H-40 圆盘式疏水阀性能参数、结构尺寸参数、价格等详情,请联系我们,电话:021-66059666。